Ces clients revaient dune maison aux volumes et aux agencements hors normes. Chez yvelines tradition le batiment est aussi une affaire de sentiment. Comment choisir ses plans de maison traditionnelle.

Il faut noter que si vous decidez de construire une maison dapres un plan maison de type traditionnelle elle doit correspondre a lesthetique de la region dans laquelle vous etes implante.
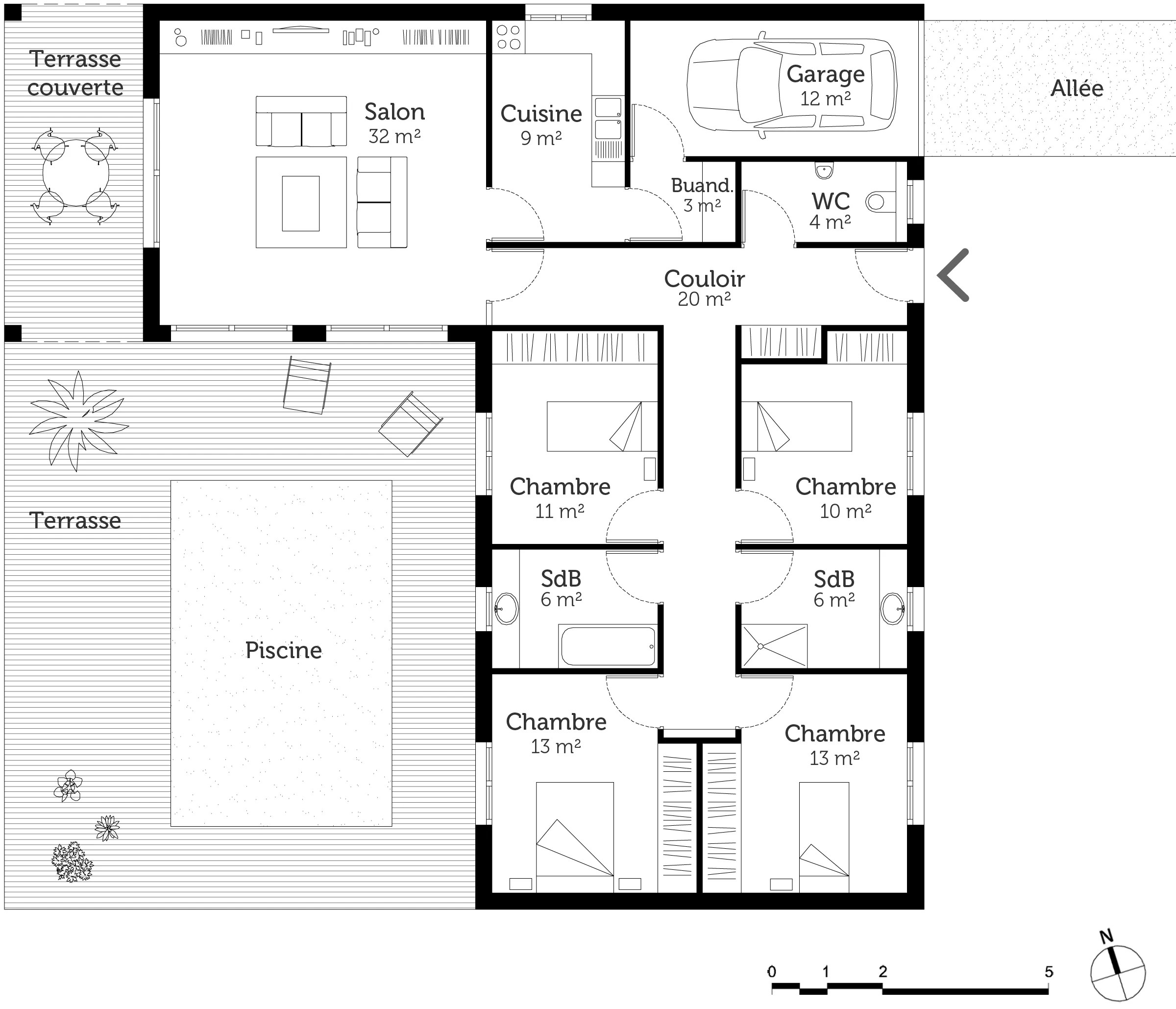
Plan dune maison moderne de 4 chambres. Intimite confort et luminosite sont reunis dans ce modele de maison plain pied. A la maniere des maitres artisans du moyen age la recherche est a lexcellence et se met au service de pieces uniques realisees dans les regles de lart. Maison ossature bois france foret architecte constructeur maison bois pour la construction plan modele et sur mesure bois bbc et passif moderne contemporaine toit plat terrasse cubique modulaire en ile de france 78 yvelines 91 essonne 92 hauts de seine 93 seine saint denis 94 val de marne 95 val d oise 77 seine et marne 27 eure 28 eure et loire. Maison moderne 4 chambres.
Les cookies nous permettent de personnaliser le contenu et les annonces doffrir des fonctionnalites relatives aux medias sociaux et danalyser notre trafic. Avec ses deux etages ses cloisons vitrees amovibles son patio et sa mezzanine cette villa cumule les excentricites chics. Choisir le plan maison contemporaine avec 4 chambres cest choisir de. Une maison ossature bois avec 4 chambres pourra etre construite par maison bois kit.
Ce modele de maison bois contemporaine en kit peu cher avec son double garage saura vous seduire. Concevoir le plan dune maison contemporaine de plain pied pour une meilleure visualisation de votre projet par vous meme et par les differents intervenants sur le chantier il existe egalement des plans 3d isometriques pour linterieur et des vues 3d pour lexterieur. Offrant de beaux espaces de vie cette villa moderne vous seduira par son architecture originale.






















